Studentische Arbeiten

SoSe 2021: Fachmodul C „Schwimmende Gärten“

In Anlehnung an die Bundesgartenschau 2029 wird sich die baukonstruktive Aufgabe des Fachmoduls mit der entwerferischen Erforschung von 70 Kilometern des Welterbes Mittelrheintal auseinandersetzen. In unserem Fall bedeutet dies allerdings nicht das Bauen an Land. Beschäftigen wird uns stattdessen das Bauen auf dem Wasser. Durch die Verwendung von Ausflugsschiffen, Schubleichtern, Anlegern und Slipanlagen werden wir die Möglichkeiten vor Ort ausloten. Die Aufgabe wird in Gruppen zu je zwei Studierenden bearbeitet. Die einzelnen Forschungsgruppen jedoch werden mehr als diese zwei Personen umfassen und bieten uns so die Möglichkeit einer vergleichenden Betrachtung unterschiedlichster Herangehensweisen und Konzepte.

Hannah Lucius, Jana Bock: Schwimmende Türme

Philipp Jaskiela, Johannes Palágyi: Schwimmender Pavillon

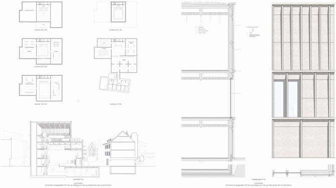
SoSe 2021 Entwurf „Gutenberg Museum Mainz“

Neudenken: Das Gutenberg Museum in Mainz ist in seiner baulichen Entwicklung nicht mehr zukunftsfähig. Es soll sich vom analogen Weltmuseum der Druckkunst zum Bundesmuseum der Druckkunst und Digitalität entwickeln. Das neue Haus soll Menschen verschiedenster Altersgruppen, Kulturkreise und Bildungsschichten nicht mehr nur Wissen vermitteln, sondern mit sinnlichen Erfahrungen die Bedeutung von Kontinuität und Innovation in den Bereichen Buch, Druck, Typographie und Digitalität nahe bringen.Es gilt einen Neubau am alten, prominenten Ort inmitten der Mainzer Innenstadt zu entwerfen. Dieser muss den Brückenschlag zwischen Tradition und Fortschritt sichtbar machen, das Museum zukunftsfähig in der Stadt verorten und die neuen Inhalte sichtbar machen.

WS 20/21 Entwurf „Die Hölle“

Die Hölle als Ort der ewigen Qualen, der Peinigungen und der Strafe – nicht einmal die alleinseligmachende katholische Kirche, die solches über lange Jahrhunderte mit der Absicht propagierte, ihre Schäfchen mithilfe von Furcht & Zittern bei der Stange zu halten, mag heutzutage mehr an dieser Kinderschreckrhetorik festhalten. Sich die Hölle als einen Schreckensort zu denken, sei also denjenigen zugestanden, die es nicht anders haben wollen – wir hingegen halten es mehr mit dem, was George Bernard Shaw in Man and Superman festhält, wonach die Hölle der Ort der unverbindlichen Annehmlichkeiten ist, im Gegensatz zum Himmel, wo es streng und asketisch zugeht – ist dieser metaphysische und metaphorische Ort, so jener der, der angenehmen Täuschung, des Trugs, der unverbindlichen Lust und der Phantastik.

WS 20/21 EnKo V „Deck 3“

Der Fachbereich Architektur benötigt einen Raum für Experimente, zusätzliche Ausstellungsflächen und Arbeitsplätze für die zeitweise große Studentenzahl. Die exponierte Lage des ehemaligen Parkdecks scheint wie geschaffen, um diesen Ort am Eingang der Architekturfakultät als neuen Bezugspunkt für die Lehre, aber auch für die Öffentlichkeit zu aktivieren. Wir benötigen ein gestaltprägendes Raumvolumen für den Fachbereich Architektur über dem ehemals bestehenden Parkdeck Lichtwiese (welches wir für diese Aufgabe als noch bestehend annehmen). Experimentierhalle, Arbeitssaal, Ausstellungsfläche oder Depot- das „Deck 3“ ist ein flexibel bespielbarer Mehrzweckraum. Die Aufgabe: Ein räumliches Tragwerk aus Stahl als Aufstockung auf der geometrischen und konstruktiven Basis des Parkhauses zu entwickeln.